1
/ 10
【TBD云集中心】-0-毛坯-1486㎡出租
房源信息
出租面积:
1486㎡
日 租 金:
4.0元/天/㎡
月 租 金:
180797元/月
交付标准:
毛坯
浏 览 量:
783次
业主类型:
物业等级:
0
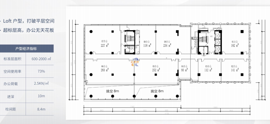
得房率:
70%
净层高:
m
物业费:
元/m²/月
层数:
层
详细位置:
昌平 - 北七家]北七家七北路与黄平路路口
TBD云集中心其他
8套房源
240
m²
4.5
元/m²
182
m²
4.5
元/m²
2000
m²
4.8
元/m²
1500
m²
4.8
元/m²
楼盘简介
(
更多北七家写字楼
)
查看更多
您最近查看的房源
面积:m²
元/m²
我要看房
电话咨询
填写您的找房需求,一键委托,即刻响应
请输入姓名
请输入手机号
我想看望京SOHO的房子,请帮忙安排。
请至少输入15个字
还可输入
56
个字
预约看房
预约成功
恭喜您预约成功!请保持手机畅通,即刻与您联系!
好的